Prodej domu, 175 m2, Chrášťany

13 621 000 czk / za nemovitost
Cena včetně právních služeb a provize RK

Prodej rodinného domu, 175 m2, Chrášťany

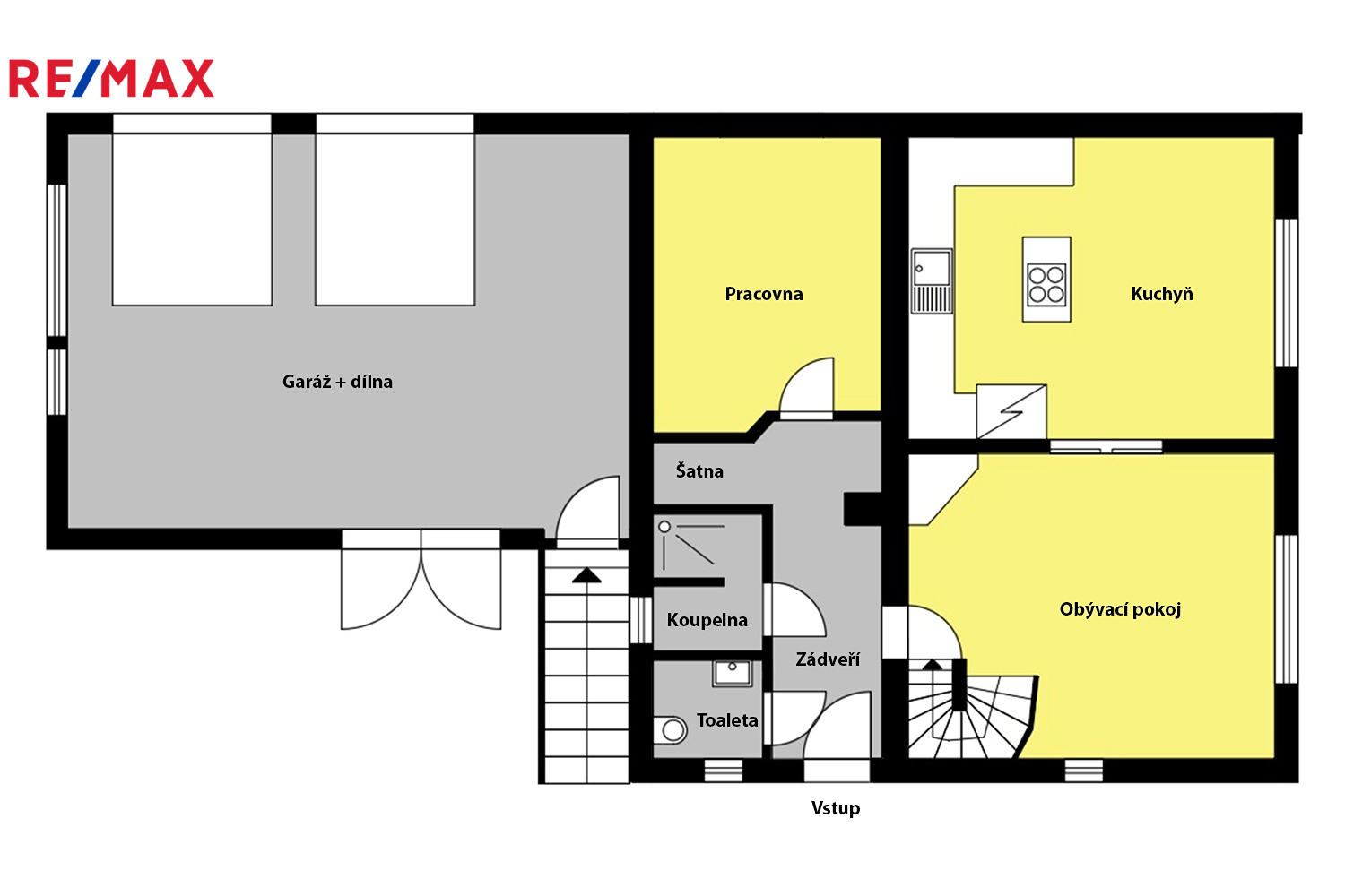
Nabízíme k prodeji prostorný rodinný dům o dispozici 5+1 s užitnou zastavěnou plochou 147 m², který se nachází na udržovaném pozemku o celkové výměře 789 m². Součástí pozemku je i samostatný výměnek (zastavěná plocha 15 m²), který je možné plnohodnotně využívat k bydlení.
Zahrada nabízí naprosté soukromí a pohodu – je plná okrasných a ovocných stromů, s několika možnostmi posezení – buď na terase, nebo pod zastřešenou pergolou s krbem a grilem. O pravidelnou péči o trávník se stará automatická sekačka a zavlažování.
Dům je vybaven dvojgaráží s dílnou, má velkou výhodu dvou vjezdů na pozemek.
Vytápění zajišťuje krbová vložka s rozvody tepla (průduchy), doplněná o přímotopy a podlahové topení + kamna na tuhá paliva ve výměnek.
V patře se nachází samostatná místnost s vířivkou (Wellness) připravená pro domácí posilovnu s vlastním vstupem.
Součástí nemovitosti jsou tři samostatné kuchyně, koupelny a dva sklepy (23,4 m2).
Střecha je z betonové tašky a byla kompletně renovována před 10 lety. V podkroví jsou nová střešní okna Velux s trojskly. K dispozici je i dostatek úložného prostoru.
Dům je napojen na elektřinu, obecní vodovod, kanalizaci a na pozemku je vlastní kopaná studna cca 7m hluboká a čištěná loni. Výměnek je napojen na plynovou bombu, co se vaření týče.
Občanská vybavenost a lokalita:
V blízkém okolí najdete veškerou základní občanskou vybavenost – školu, školku, obchod, poštu i lékaře. Lokalita je ideální pro rodinné bydlení, s dobrou dopravní dostupností do většího města i krásnou přírodou v dosahu.
Nemovitost lze financovat pomocí hypotéky, kterou Vám rádi pomůžeme vyřídit.
V případě zájmu o prohlídku nebo více informací mne kontaktujte.
Číslo zakázky: 059-NP07527
Město: Chrášťany
Počet nadzemních podlaží objektu: 2
Celková plocha: 175 m2
Plocha pozemku: 789 m2
Zastavěná plocha: 147 m2
Typ nemovitosti: Domy
Poloha domu: Samostatný
Druh objektu: Cihlová
Stav objektu: Velmi dobrý
Energetická náročnost budovy: G
Garáž: Ne
Doprava: Silnice, Autobus
Voda: Zdroj pro celý objekt, Rozvod studené a teplé vody
Odpad: Kanalizace
Plyn: Individuální
Balkón: Ne
Lodžie: Ne
Výtah: Ne

Mám zájem o nemovitost

Virtuální prohlídka

Tuto nemovitost vám rád(a) představí

Michal Zadražil

Zadražil Michal


 
Tel. na makléře:
+420 774 942 980

Potřebujete poradit / máte zájem o prohlídku?

Zadané údaje zpracováváme dle těchto podmínek.